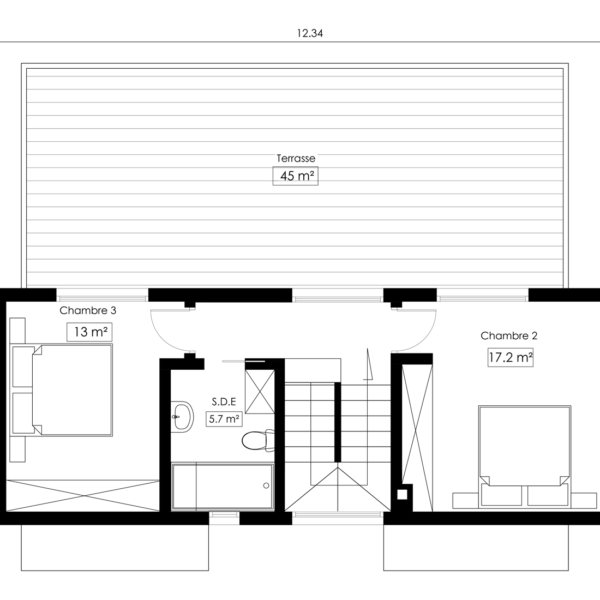
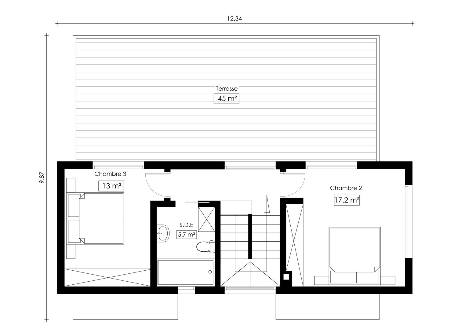
Eole
- Un S+3 (F4) de 140 m2
- Architecture : Atelier WS
Détails
Revêtement extérieur principal : Bardage en épicéa traité peint
Revêtement extérieur – inserts : Bardage en sapin préservé marron
Menuiserie : Menuiserie alu TPR série 22 et 67
Occultations : Non fournies
Revêtement de plafond : Placoplatre
Revêtement des murs : Placoplatre
Revêtement au sol : Stratifié chêne
Portes intérieures : Isoplane blanche
Façades dressings : Façades blanches
Sanitaires : Sanindusa Cetus
Robinetterie : Sanindusa Cetus
Cuisine : Oui
Façades cuisine : Façades blanches
Plan de travail cuisine : Lamellé collé Châtaignier
Climatisation : Non fournie
Cheminée : Non









Pas de commentaire